Floor Plan 740

Contact us today if you are interested in having our team build this floor plan on your lot.

Get a Quote

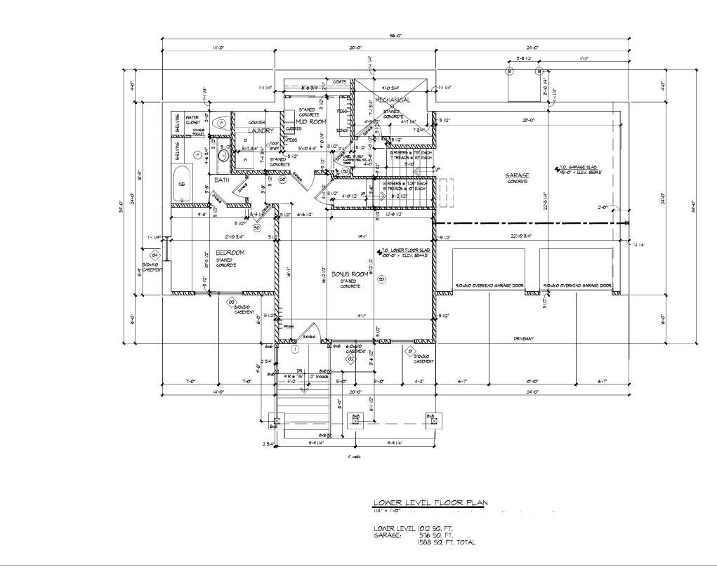
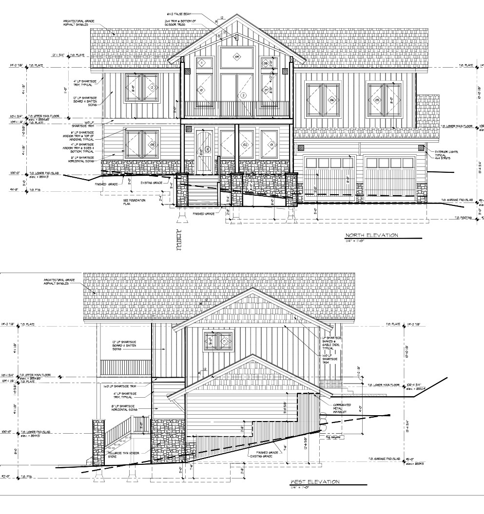
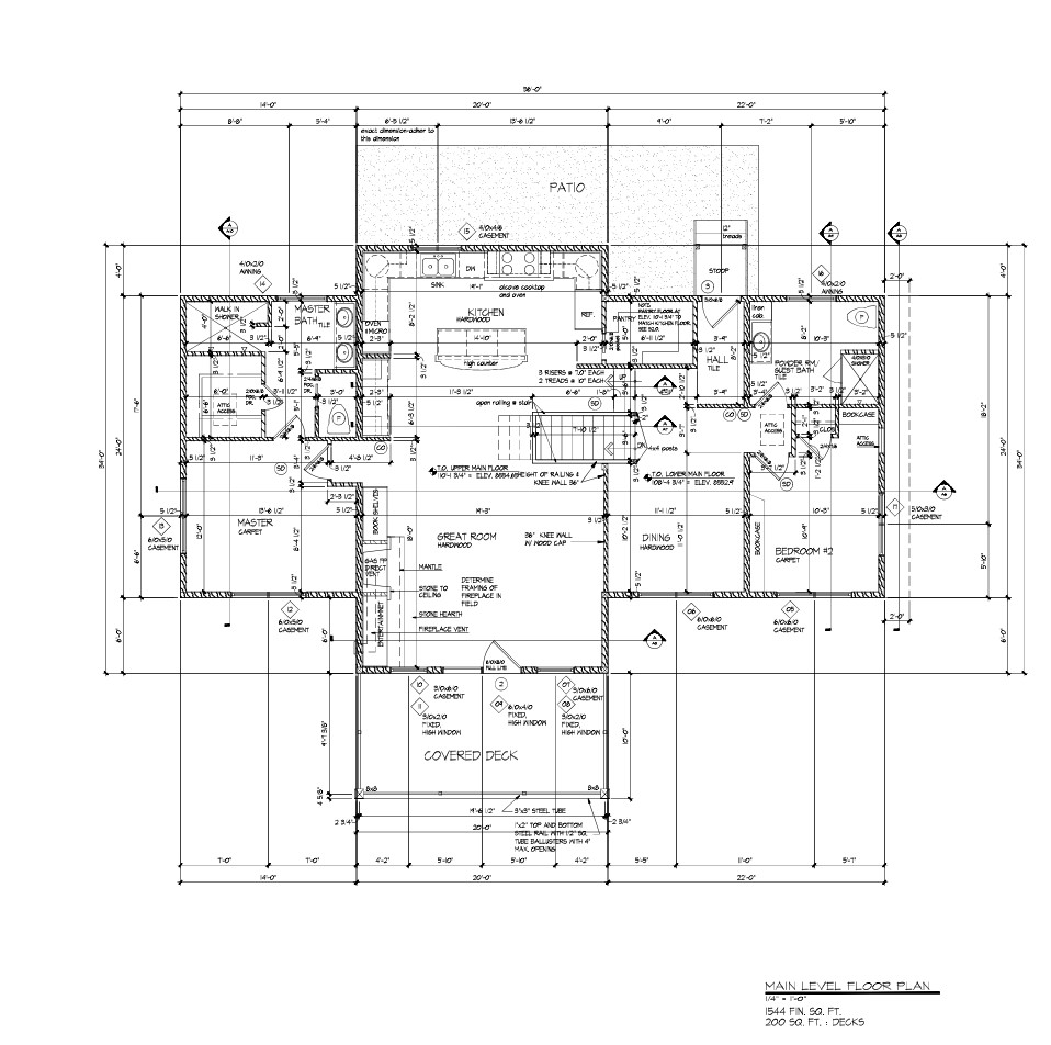
This floorplan was designed for an uphill sloped lot facing the street to maximize views. The plan has 3 bedrooms and 3 baths. the lower bonus room could be converted to a 4th bedroom during construction. The 34 foot vaulted ceiling on the upper level encompasses the spacious Kitchen , and fireplaced living room. The double door leads from the living room out to the covered porch looking out over the gorgeous panoramic views.

The master suite has a large walk-in closet, an oversized shower and a private toilet room. Withe the great room located on the upper floor all the views are enhanced for everyone to enjoy. the 8x7 pantry is large enough to store everything you will ever need in the kitchen and the 8 foot island has a large overhang to allow plenty of seating for a quick breakfast or snack. There is a 7 foot coffee bar next to the island for easy access. The 2 car garage has an entrance to a large mud room on the lower level. All the oversized windows allow plenty of light into the home while they open up the views. Set on a sloping lot, this home will command the attention of the neighborhood as it stands proud while enhancing all the majestic mountain views. There is a 12x20 patio on the rear of the house for grilling and relaxing. This plan is best suited for a lot that slopes up from the street.

2,556 sqft

3 Beds

3 Baths

2 Car Garage

2 Stories

Base Price $1,412,540

Covered Porch

Panoramic Views

Get a Quote

So, if you are looking for a custom home builder who can also provide build-on-your-lot services, you
are in the right spot. Let’s have a chat and see how Granby Resort Homes can design and build your dream house right here in the heart of the Rocky Mountains.