Floor Plan 380

Contact us today if you are interested in having our team build this floor plan on your lot.

Get a Quote

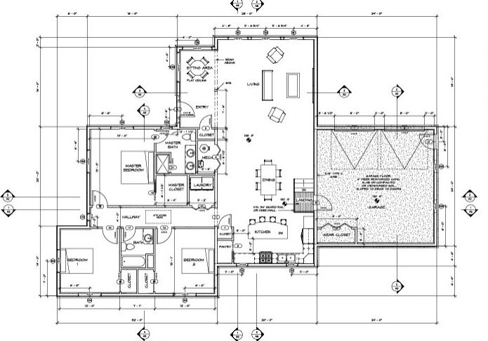
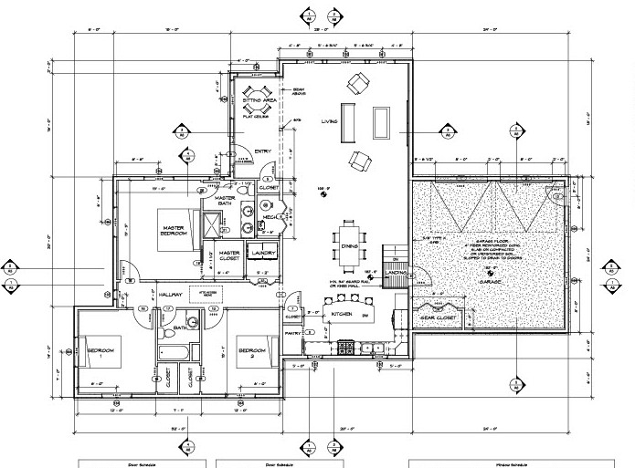
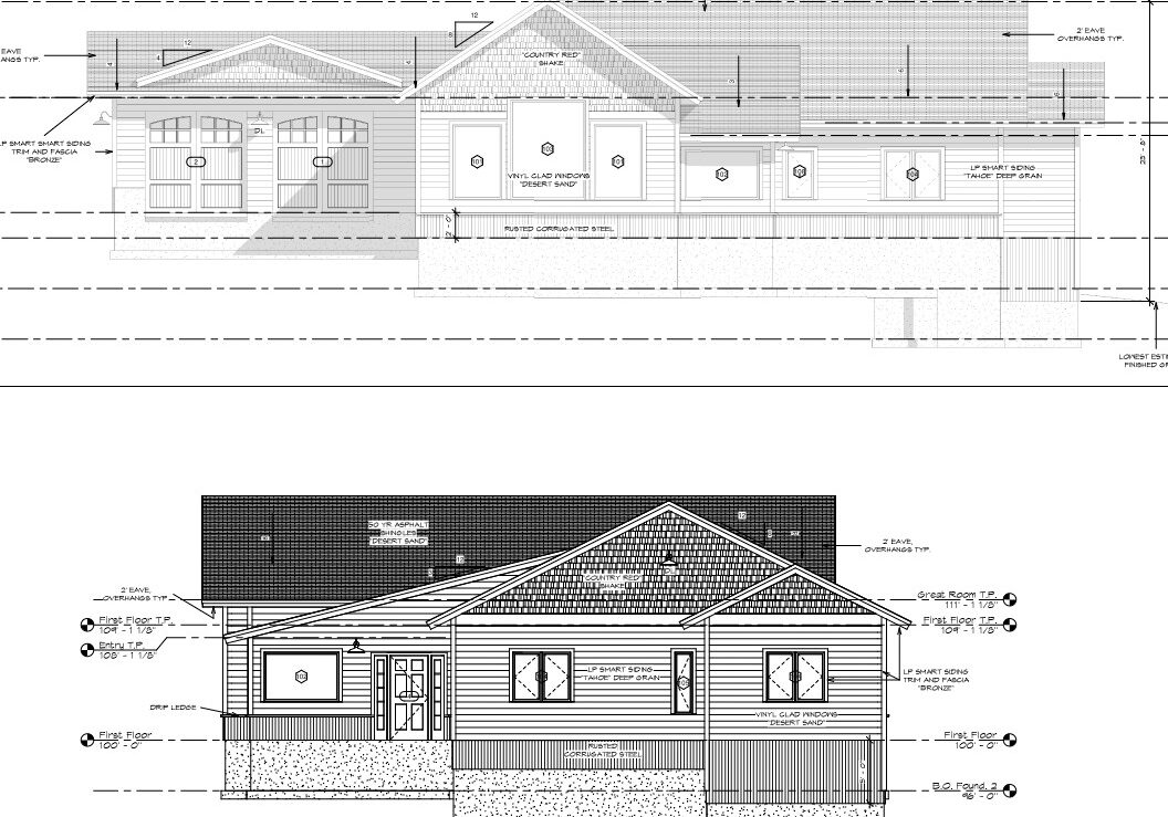
This 3 bedroom home is a single level for easy living. It boasts a 40 foot vaulted ceiling encompassing the kitchen, dining area and great room with a large window wall to bring the spectacular views into the home. Bathrooms include tile floors and wainscot. Kitchen floor is tile. Dining, great room, sitting area & hall is hardwood flooring. Bedrooms are carpeted. Hand textured stucco walls and ceilings give the mountain feel that makes the home fit right in. Gas Fireplace located in Great room. The kitchen has Hardwood cabinets with a spacious Island and granite tops. appliances include dishwasher, refrigerator, gas range & microwave. You will love walking on the warm, radiant heated floor throughout. The interior doors and trim are stained Knotty Alder with a deep wood grain bringing out the natural beauty of the wood. The garage is finished with a gas ceiling mounted heater and 2 overhead doors with electric openers. This plan is well suited for a flat or a sloped lot.

2,016 sqft

3 Beds

2 Baths

2 Car Garage

1 Story Single Family

Base Price $1,129,440

Ranch Rambler

Gas Fireplace

Get a Quote

So, if you are looking for a custom home builder who can also provide build-on-your-lot services, you
are in the right spot. Let’s have a chat and see how Granby Resort Homes can design and build your dream house right here in the heart of the Rocky Mountains.