Floor Plan 655

Contact us today if you are interested in having our team build this floor plan on your lot.

Get a Quote

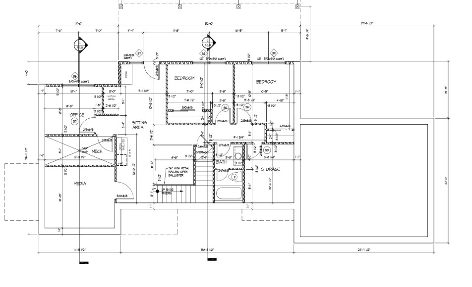
With 2449 sq ft this Mountain Modern style home has extraordinary amounts of open space. The main level has huge 20 ft vaulted ceilings that flood the entire home with natural light. The massive window wall opens up the entire home to unlimited mountain views and gorgeous sunsets. The roof overhangs the entire rear deck space and enhances the appearance of the home. The main level has a large primary suite including a double vanity, large shower and separate toilet room. Additionally, there is a large walk in closet along with the vaulted bedroom. The kitchen has solid hardwood cabinets with a large island and granite tops and a 10 ft pantry. The center of the home includes a spacious living room with a gas fireplace. The combination mud room and laundry is located at the entrance to the 2 car garage. The lower walkout basement has 2 bedrooms, a full shared bath and an office that could be enlarged to make a 4th bedroom during construction. You will love the comfort of radiant heat throughout the home. This plan has giant exposed 24" tall beams for the roof support and is closed in with Structural Insulated Panels (SIPs) for the roof surface. these panels with the spray foam insulation in the walls makes for a very energy efficient house that is easy to heat and highly energy efficient. This plan is best suited for a lot that slopes downhill from the street.

2,449 sqft

3 Beds

2.5 Baths

2 Car Garage

2 Stories

Base Price $1,316,785

Mountain Modern

Vaulted Ceilings

Get a Quote

So, if you are looking for a custom home builder who can also provide build-on-your-lot services, you
are in the right spot. Let’s have a chat and see how Granby Resort Homes can design and build your dream house right here in the heart of the Rocky Mountains.